Martin a Lucia hľadali odpoveď na rovnakú otázku ako veľa iných mladých párov. Plánovali rodinu a vedeli, že byt, v ktorom žili, im nebude stačiť.
Zvažovali, ako si zabezpečiť nové bývanie tak, aby sa nezadlžili veľkou hypotékou, no mali dostatok priestoru na pohodlné fungovanie.
Nakoniec sa rozhodli, že si postavia dom v jednej zo záhradkárskych oblastí v Stupave, kde aj predtým žili.


Regulácia má svoj zmysel
„Do tejto lokality sme chodili na bicykel alebo na prechádzky. Raz sme si všimli tabuľu, že je to tu na predaj, no hneď sme to zavrhli, pozemok sa nám zdal príliš úzky,“ spomína Martin.
„Potom sme sa sem vrátili a uvedomili sme si, aké pekné miesto to je. Záhrada sa tiahne až hore na kopec, je tu starý ovocný sad, má to svoje genius loci. Povedali sme si, že toto je to miesto,“ dopĺňa.
Pozrieť však boli aj iné pozemky. Všetky boli v záhradkárskych lokalitách, ktoré sa najmä v dôsledku rastúcich cien stavebných pozemkov, materiálu aj práce menia na trvalo obývané územia nielen u nás, ale aj v zahraničí.
„Bežný stavebný pozemok bol pre nás finančne úplne mimo, ani sme sa o tom nebavili,“ hovorí Martin, ktorý je geograf a v rámci svojho výskumu sa zameriava najmä na tému suburbanizácie.
Pozemok v záhradkárskej oblasti má svoje stavebné obmedzenia, ktoré vyplývajú z územného plánu. Nosným limitom je, že stavba na ňom nesmie mať väčšiu zastavanú plochu ako 40 metrov štvorcových a môže mať maximálne dve podlažia. Cieľom regulácie je, aby si aj pri novej výstavbe lokalita zachovala svoj pôvodný charakter.
„To obmedzenie je príklad dobrej regulácie. Ľudia majú z regulácií husiu kožu, no možnosť zastavať plochu 40 metrov štvorcových znamená, že tu stále bude ten záhradkársky charakter a nikto to tu nezdevelopuje nejakým hulvátskym spôsobom. Že tu budú malé domčeky a zostane tu veľa zelene,“ približuje majiteľ.


Ako štandardný trojizbový byt
Manželia na spoluprácu oslovili architekta Andreja Olaha z ateliéru Grau, s ktorým sa dobre poznali. Spolu s kolegami Filipom Marčákom a Matejom Kurajdom boli s domom v Stupave tento rok nominovaní na ocenenie CE ZA AR v kategórii Rodinné domy.
Dom situovali v prednej časti pozemku, pôvodná malá chatka sa nachádza hore na kopci.
„Limity boli dané, už sme sa potom rozprávali len o tvare domu. Pôvodne sme viac pracovali so šírkou pozemku. Chceli sme dopriať viac priestoru obývačke, no potom sme si uvedomili, že chceme zachovať záhradu so starými rozrastenými stromami. Stredom pozemku prechádza chodník, ktorý je takou osou, rozhodli sme sa, že ju budeme rešpektovať,“ hovorí Andrej Olah.
„Dom sme otočili a natiahli, vďaka čomu ,chytá‘ východné slnko. V lete sa potom plocha obývačky zdvojnásobuje o plochu pergoly – otvoria sa okná a obe časti sa tým prepoja,“ dopĺňa.
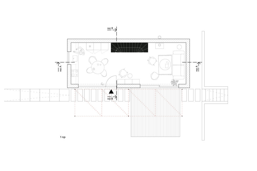
Tvarovo jednoduchý dvojpodlažný dom s obdĺžnikovým pôdorysom a plochou strechou tak má hrubú podlažnú plochu 80 metrov štvorcových. Celková obytná plocha je asi 63 metrov štvorcových. Svojou rozlohou tak dom predstavuje štandardný trojizbový byt.
Prízemie rodinného domu tvorí denná časť, ktorá prepája kuchyňu s obývacou izbou. Na poschodí sa nachádza rodičovská spálňa, detská izba a kúpeľňa s WC.
„Pracovali sme s viacerými verziami. V rámci jednej sme na prízemí vytvorili zádverie aj WC, no priestor to veľmi limitovalo. Dohodli sme sa, že WC dáme hore a zredukujeme vstupné zázemie, aby tu vznikla väčšia otvorená plocha,“ približuje architekt.




Oslovil ich koncept tiny house
Martin a Lucia, ako aj architekt Andrej Olah, vnímajú, že veľkosť bývania je dnes veľkou témou. Kým na ploche trojizbového bytu dokáže veľa rodín spokojne žiť, pre iné je to primálo.
„Je to o tom, čo je pre človeka dostatočné bývanie. Nás oslovil aj koncept tiny house, bývania na malej ploche, kde je všetko funkčné a vopred vyrátané, kde nie je nič navyše,“ hovorí Martin.
„My sme išli do väčšieho, vnímame to tak, že sme sa posunuli, polepšili sme si. Považujeme to za racionálne riešenie bytovej otázky. Každý potrebuje nejako bývať a toto bolo to, čo sme vedeli zrealizovať,“ dopĺňa.
Za desať rokov existencie zrealizovali v ateliéri Grau už viacero rodinných domov, ten v Stupave je však najmenší. Andrej Olah sa pri svojej práci bežne stretáva s tým, že keď už sa ľudia rozhodnú pre stavbu domu, chcú postaviť veľký dom často s výmerou niekoľko stoviek metrov štvorcových.
„Bežný rodinný dom sa dá postaviť na ploche 120-130 metrov štvorcových, no ľuďom to často nestačí. Chcú aj pracovňu, hosťovskú izbu a ďalšie miestnosti. Vysvetľujeme im, že život s deťmi je pomerne krátky – 15, maximálne 20 rokov. Že deti sú najskôr s rodičmi v spálni, potom spolu v izbe a potom môžu mať určité obdobie samostatné izby,“ vraví architekt.
„Za dobré riešenie považujeme nastaviť si to tak, že pracovňa na nejaký čas zmizne a zmení sa napríklad na druhú detskú izbu, no ľudia s tým veľakrát majú mentálny problém. Boja sa toho pustiť a potom sa stáva, že dvaja ľudia zostanú žiť v obrovskom dome,“ dopĺňa.
Architekt zdôrazňuje, že ľuďom u nás chýba flexibilita, s akou k riešeniu bývania pristupujú v zahraničí. „Ľudia žijú tak, ako aktuálne potrebujú, a sú zvyknutí sťahovať sa. U nás sa to nedeje.“



Ani hrad, ani konzerva
Majitelia sa rozhodli, že si postavia drevodom. Dôvodov bolo viacero. Jedným z nich bola výrazne menšia hrúbka steny ako v prípade murovanej stavby, aby mohli čo najviac využiť zastavanú plochu, ďalšími dôvodmi bola rýchlosť výstavby aj ekológia.
„Chceli sme, aby bola stavba ekologickejšia, ale nebol to primárny cieľ. Nemali sme zámer ísť do parametrov pasívneho domu, cieľom bolo urobiť malý funkčný dom s minimálnou spotrebou energie. Skôr to tak vyplynulo. Drevo je prírodný materiál, v ktorom sa dobre býva. Vlhkosť z priestoru prirodzene dobre odchádza. V zime s ňou vôbec nie je problém, hoci tu sušíme bielizeň, varíme, dýchame,“ vraví Martin.
V ateliéri Grau sa stretávajú s tým, že ľudia majú voči stavbám z dreva predsudky. „S nedôverou sa pozerajú na to, koľko to vydrží, či to nezhnije. Dobrým príkladom sú drevenice, ktoré stoja viac ako 100 rokov a nič im nie je,“ približuje Olah.
Niektorých ľudí môže od stavby z dreva odrádzať aj životnosť, Martin s Luciou v tom však problém nevidia.
„Nemáme ambíciu, že by dom po nás zdedili deti alebo niečo podobné. Postavia si svoje, možno budú žiť úplne inde. Nemusíme tu sto rokov budovať nejaký hrad, nejakú konzervu. Dom má prirodzenú životnosť 40-50 rokov a potom to už takpovediac nie je naša starosť. Môže zhorieť v táborovom ohni, nič z neho nezostane,“ zhodujú sa manželia.
Spolu s architektmi si povedali, že keď už idú stavať drevostavbu, budú ju ako drevostavbu aj prezentovať. Vonkajšiu fasádu tvorí opaľované drevo, v celom interiéri použili brezovú preglejku.



„Budúcnosť domov pre jednu rodinu“
Andrej Olah zvykne dom v Stupave nazývať Minimálny. Nielen pre jeho rozlohu aj technologickú jednoduchosť. „Nie je tu takmer nič, nemá sa tu čo pokaziť,“ hovorí architekt.
„Robili sme aj veľké domy, ktoré sú plné tepelných čerpadiel, rozvodov vzduchotechniky a chladenia či inteligentnej elektroinštalácie, tu nič také nie je. Je to kvalitne zateplený dom s citom pre detail, avšak technologicky minimálny.“
V dome je podlahové vykurovanie, ktoré zabezpečujú elektrické rohože, no majitelia vykurujú najmä pieckou na prízemí. Je v ňom jeden bojler na prípravu teplej vody a čerpadlo na vodu zo studne, pretože do lokality nie je dotiahnutá vodovodná ani kanalizačná sieť.
Odpadové vody sa odvádzajú do žumpy. Dažďová voda sa odvádza do zbernej nádrže, ktorú majitelia používajú aj na polievanie záhrady, zvyšok ide do vsakovacej jamy.
Švajčiarska architektka a porotkyňa tohtoročného ročníka ocenenia CE ZA AR Doris Wälchli vo videodokumente k nominovaným rodinným domom vyzdvihla, že malý dom s minimom technológií predstavuje budúcnosť domov pre jednu rodinu.
Podobne to vníma aj Olah. „Myslím si, že to bude budúcnosť aj pre rastúce ceny pozemkov, materiálov a práce. Ľudia budú nútení hľadať bývanie v podobnom duchu alebo napríklad vo forme cohousingu, komunitného bývania inšpirovaného mestskými vilami,“ vraví architekt.
„Budú v ňom dva-tri byty a ich obyvatelia budú zdieľať záhradu. Kedysi tak žili rodiny, myslím si, že v budúcnosti to budú kamaráti,“ dopĺňa.
Majiteľ Martin dodáva, že dom je minimálny aj nákladmi na výstavbu a prevádzku.
„Podlahové vykurovanie zapíname možno na dva týždne v roku, keď sú tie najtuhšie mrazy, inak to tu vykúri slnko. Je to bývanie v štýle nízky rozpočet, nízke náklady. V podstate tu žiadne náklady nie sú. Len na elektrinu, ktorá poháňa aj čerpadlo, no sú to malé peniaze.“


Najmä svojpomocne
Prvý návrh domu vznikol v roku 2017, majitelia v ňom tento rok strávia tretiu zimu. Hoci hrubá stavba domu vznikla za dva dni, veľkú časť prác si majitelia za pomoci kamarátov robili svojpomocne, čo prirodzene celý proces predĺžilo.
„Na dome som robil postupne – po robote, po víkendoch, všetko som sa musel naučiť. Na niektoré veci sme potom mesiace čakali. To asi pozná každý, kto staval – vždy je to na etapy. Je to istým spôsobom smiešne, lebo je to malý dom, no tá robota je vždy tá istá, či staviate veľký dom alebo malý. Jednoducho ju treba urobiť,“ hovorí Martin.
Pre majiteľa išlo o prvú skúsenosť so stavbou domu a spätne hovorí, že bol z kvality práce niektorých majstrov sklamaný.
„Kvalita práce bola veľmi rozdielna. Kým naši stolári urobili skutočne špičkovú prácu, s prácou iných majstrov to bolo niekedy veľmi rozpačité. Nie každému sa chcelo hrať s detailom, a tak sme sa niektoré práce pokúsili urobiť nakoniec sami. Takže za krivo nalepenú kachličku v kúpeľni sa môžem hnevať len na seba,“ dodáva s úsmevom majiteľ.
Sami si robili kuchyňu, kúpeľňu, zateplili podlahu a postarali sa aj o vonkajšiu fasádu vrátane opaľovania dreva, výbrusu a natretia, rovnako tak terasu a chodník. „Robili sme najmä tie ,hlúpe‘ roboty, lopatovacie a betónovacie práce, aj preto, že by sme to inak nedokázali zaplatiť,“ približuje majiteľ.
Úplne sa nevydarila finálna povrchová úprava betónovej podlahy, kde sa firme ani na druhý pokus nepodarilo docieliť želaný jednoliaty efekt. Na jej vzhľad si majitelia postupne zvykli a dnes vnímajú najmä jej benefity.
„Liata betónová podlaha je nesmrteľná a použili sme ju na oboch podlažiach zámerne kvôli akumulácii. Báli sme sa, že sa drevostavba bude v lete prehrievať. Podlaha počas slnečných dní akumuluje teplo, vďaka čomu sa dom neprehrieva. Pomohla tomu aj drevovláknitá izolácia, ktorou sme dom zvonku zateplili,“ vysvetľuje architekt.


Dom ako statusová záležitosť
V záhradkárskej lokalite, kde Martin s Luciou žijú, nie sú osamotení. Viacero pôvodných chát je už prerobených a slúžia na trvalé bývanie, prípadne sa aktuálne rekonštruujú.
„Je tu už komunita ľudí, ktorí tu žijú natrvalo. Prirodzene sa to vyfiltruje cenou nehnuteľností. Je tu učiteľ zo základnej umeleckej školy, učiteľ angličtiny, ja som takisto učiteľ. Tiež to niečo hovorí o tom, kto tu býva. Všetko je to stredná trieda, no nie každý zo strednej triedy má na bývanie v Bratislave a je to aj vec mentálneho nastavenia,“ hovorí majiteľ.
„Dom je u nás podobne ako auto statusová záležitosť. V meste možno menej, ale na vidieku to platí. To, aký dom človek postaví, sa vníma aj ako prejav jeho spoločenského úspechu. Myslím si, že je to stále v nás, že sa chceme prezentovať veľkým statkom. Určite by so mnou veľa ľudí nesúhlasilo, lebo nie každý si to dokáže priznať,“ dopĺňa.
Martin s Luciou sa zhodujú, že v dome im nič nechýba a môžu aj vďaka vlastnej záhrade žiť tak, ako chcú.
„Myslím si, že aj keby sme mali tie prostriedky, tak by sme nešli do väčšieho domu. Úplne nám to stačí. Pre rodinu so šiestimi deťmi by to nebolo, no pre nás s dvomi je to akurát. Veľmi rýchlo sa to uprace. Nechýba nám priestor, netlačíme sa tu.“
Máte pripomienku alebo ste našli chybu? Prosíme, napíšte na [email protected].
Natália Žáková























